Die 2-Zimmer-Dachgeschosswohnung mit einer Grundfläche von 37 m² liegt im 2. OG eines Mehrparteienhauses auf der Südspitze in Wittdün auf Amrum und bietet Platz für 2 Personen. Das Besondere an der Wohnung ist der faszinierende Ausblick aufs Meer aus jedem Fenster der Wohnung. Je nach Himmelsrichtung gucken Sie auf Kniephaken und Kniepsand oder die Wattseite mit den Häfen von Wittdün und Steenodde sowie den Seezeichenhafen. Diesem Ausblick, von welchem man nicht genug bekommen kann, hat die Wohnung ihren Namen „Gaubenkieker“ zu verdanken. Beobachten Sie aus dem Wohnzimmer heraus vorbeifahrende Schiffe mit den Halligen als einzigartige Kulisse im Hintergrund, die im Meer versinkende Sonne oder mit etwas Glück das Blinken des Helgoländer Leuchtturms zur Abendzeit. Es offenbart sich Ihnen immer wieder ein neuer Ausblick und etwas Neues zum Entdecken. Die Wohnung ist eine Nichtraucherwohnung. Haustiere sind nicht erlaubt. Im Keller des Hauses stehen eine Waschmaschine sowie ein Wäschetrockner mit Münzbetrieb zur Verfügung. Als unser Gast erhalten Sie auf Wunsch kostenfreien Zugang zum Internet über WLAN.
Die Wohnung
Räume und Ausstattung
| Wohnzimmer | Relax-Couch, Couchtisch, Esstisch m. Sitzbank und 2 Stühlen, Sideboard, LED-SAT-TV, CD/Radio, Telefon, Laminatboden |
| Schlafzimmer | 2 Einzelbetten à 90x200cm (können auch zusammengestellt werden), Nachttisch, Stuhl, Kleiderschrank, Laminatboden |
| Küche | Kühlschrank m. Gefrierfach, 4-Platten-Elektroherd, Dunstabzugshaube, Spüle, Kaffeemaschine, Wasserkocher, Toaster, Laminatboden |
| Bad | Dusche m. Duschtrennwand, WC, Waschbecken, Föhn, Fliesen, Fußbodenheizung |
Meerblick aus allen Fenstern
WLAN
PKW-Stellplatz
Fahrrad-Stellplatz
zentral im Ort
Fähre fußläufig erreichbar
Impressionen
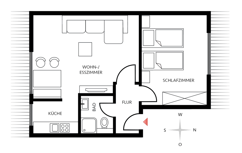
Grundriss
Die Lage – ruhig und zentral
Die Wohnung liegt am Ende einer Sackgasse auf der Südspitze 17 in Wittdün auf Amrum, umgeben vom Meer. Durch die ruhige, aber dennoch sehr zentrale Lage liegen Strand, Watt, Lebensmittelmarkt und Geschäfte, Fahrradverleih, Cafés und Restaurants sowie der Fähranleger nur wenige Gehminuten von der Wohnung entfernt. Ein PKW-Stellplatz steht ebenso zur Verfügung.
Anschrift: Ferienwohnung „Gaubenkieker“, App. 8, Südspitze 17, 25946 Wittdün auf Amrum
Der Ort Wittdün – alles ganz nah
Wittdün auf Amrum ist eine der drei Gemeinden auf Amrum und das „Tor zur Insel“. Mit seiner guten Infrastruktur bietet Wittdün vielfältige Einkaufsmöglichkeiten, Restaurants und Cafés zum Verweilen und Genießen. Ebenso befindet sich hier das „Amrum Badeland“ mit Meerwasserhallenbad und diversen Saunen sowie das „amrumspa“.
Die abwechslungsreiche Naturlandschaft rund um Wittdün, mit Kniepsandstrand, Watt, Aussichtsdüne, Wriakhörnsee und Marsch- und Salzwiesen bietet ideale Voraussetzzungen zum Wandern, Joggen, Walking, Radfahren oder einfach zum Sonnenbaden und Vögel beobachten.
Die Insel Amrum – abwechslungsreiche Naturschönheit
Im Sommer lädt Amrum mit seinem phänomenalen Badestrand besonders zum Baden und Sonnen ein. Aber auch Naturliebhaber werden zu jeder Jahreszeit auf der Insel fündig, da Amrum landschaftlich viele Facetten besitzt. Von der Sandbank „Kniepsand“ als Badestrand über Dünen, Wald, Heide, Weideland, Felder, Salzwiesen bis hin zum Watt wird auf kleinstem Raum viel Abwechslung geboten.
Buchen, Preise und Verfügbarkeit
Die Buchung der Ferienwohnung erfolgt über das Amrum Appartement Centrum (AAC). Ermitteln Sie Vakanzen und den Endpreis für Ihren gewünschten Aufenthaltszeitraum komfortabel mit dem Buchungskalender und buchen Sie auf Wunsch direkt online.
Sie haben noch Fragen oder möchten telefonisch buchen? Das AAC hilft Ihnen unter 04682 96 80 515 gern weiter.
Service
An dieser Stelle haben wir einige Informationen für Sie zusammengestellt, die für Ihre Urlaubsplanung hilfreich sein könnten.
Anreise
Amrum können Sie auf unterschiedlichen Wegen erreichen, die folgenden sind die üblichsten:
- ab Dagebüll mit den Fähren der Wyker Dampfschiffs-Reederei (W.D.R.)
- ab Nordstrand mit dem MS „Adler Express“ der Adler Schiffe
Klicken Sie auf eine der Möglichkeiten, um weitere Informationen zur Anreise zu erhalten. Weitere Anreiseoptionen finden Sie hier.
Tipp: Wenn Sie eine Überfahrt mit PKW planen, reservieren Sie möglichst rechtzeitig im Voraus bei der W.D.R.! Reine Personenfahrkarten können Sie online, am jeweiligen Festlandshafen, bei der neg Niebüll (an Bord des Zuges und im Kundencenter) oder zusammen mit Ihrer Bahnfahrkarte erwerben.
Tipp: Informieren Sie sich am Tag Ihrer An- und Abreise über eventuelle witterungsbedingte (Sturm/Niedrigwasser) Fahrplanänderungen! Dies können Sie auf der Webseite der entsprechenden Reederei tun.
Fahrpläne und Reiseauskunft
Informieren Sie sich mit einem Klick über alle Fährverbindungen nach und von Amrum:
Planen Sie Ihre Anreise mit Bahn und Bus bequem über die Online-Reiseauskunft der Deutschen Bahn:
Tipp: Beachten Sie, dass die gemeinsame Buchung von Bahn- und Fährfahrkarte teurer als der Einzelkauf sein kann.
Kontakt
Haben Sie Fragen, Anregungen, Lob oder Kritik? Wir freuen uns über Ihre Nachricht!
Impressum und Datenschutz